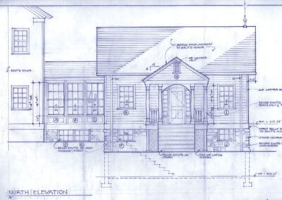
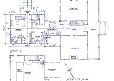
Keil House
Historic Keil House Addition
Aurora, Oregon
The challenge for this project was to provide a sensitive addition for this historically significant 1873 house listed on the National Historic Register. This is the historic Keil homestead, named for the founding family of the Aurora Colony in Oregon.
The approach taken was to create a cottage behind the house, separate yet connected by a cheerfully glazed solarium. The original back porch was therefore moved from its original location and repositioned to create the front porch for the new cottage.
