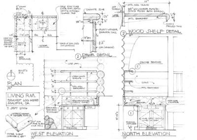
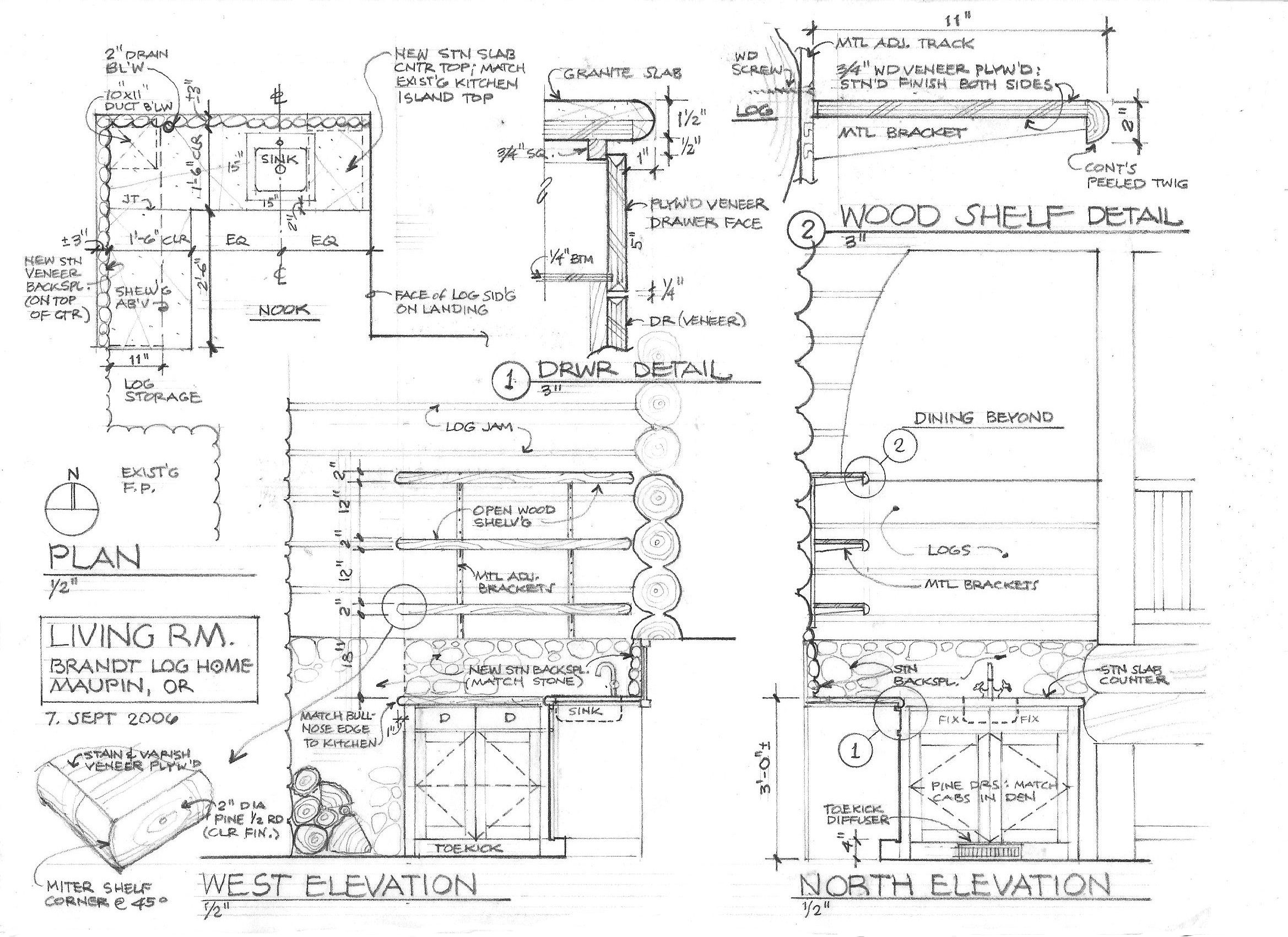
Log Home on the Deschutes River
Maupin, Oregon
“Relax and stay awhile…cozy up to the fire…”
-JB Architecture, Seattle, Washington
This stunning custom log home surveys Central Oregon’s Deschutes river valley in Maupin, a modest sunspot for patient fishermen and thrill-seeking river rafters, just south of The Dalles.
The home uses all natural materials: Deschutes river rock, and beetle-kill pine logs harvested, peeled and assembled locally. The largely open interior consists of several levels unified by a central log stair, creating a “tree house of lofts.”
